在一个机房项目中,比起造价昂贵、高科技的硬件和软件,桥架显的很不起眼,但这并不降低桥架在机房中的作用,桥架是整个布线工程中不可缺少的部分,设计选型过程应根据各个系统线缆的类型、数量,合理选定适用的桥架至关重要,本期我们来做个桥架专题,一起来了解下桥架的施工安装与计算。
一、桥架的种类与选择
一、电缆桥架型式及品种的选择
1、需屏蔽电气干扰的电缆网路或有防护外部(如:有腐蚀液休,易燃粉尘等环境)影响的要求时,应选用(FB)类槽式复合型防腐屏蔽电缆桥架(带盖)。
2、强腐蚀性环境应采用(F)类复合环氧树脂防腐阻燃型电缆桥架。托臂、支架也要选用同样材料,提高桥架及附件的使用寿命,电缆桥架。在容易积灰和其它需遮盖的环境或户外场所宜加盖板。
3、除上述情况外,可根据现场环境及技术要求选用托盘式、槽式、梯级式、玻璃防腐阻燃电缆桥架或钢质普通型桥架。在容易积灰和其它需遮盖的环境或户外场所宜加盖板。
4、在公共通道或户外跨越道路段,底层梯级的底部宜加垫板或在该段使用托盘 。大跨距跨越公共通道时,可根据用户要求提高桥架的载荷能力或选用行架。
5、大跨距(>3m)要选用复合型桥架(FB)。
6、户外要选用复合环氧树脂桥架(F)。

二、电缆桥架安装施工工艺
一、电缆桥架安装工艺流程:
定位放线→预埋铁件或膨胀螺栓→支.吊.托架安装→桥架安装→保护接地安装

二、确定始端与终端位置
根据施工图确定始端到终端位置,沿图纸标定走向,找好水平、垂直、弯通,用粉线袋或画线沿桥架走向在墙壁、顶棚、地面、梁、板、柱等处弹线或画线,并均匀档距画出支、吊、托架位置。
三、预埋铁件或膨胀螺栓
1、预埋铁件的自制加工不应小于120mm×80mm×6mm,其锚固圆钢的直径不小于10mm。
2、紧密配合土建结构的施工,将预埋铁件平面紧贴模板,将锚固圆钢用绑扎或焊接的方法固定在结构内的钢筋上;待混凝土模板拆除后,预埋铁件平面外露,将支架、吊架或托架焊接在上面进行固定。
3、根据支架承受的荷重,选择相应的膨胀螺栓及钻头;埋好螺栓后,可用螺母配上相应的垫圈将支架或吊架直接固定在金属膨胀螺栓上。
四、支、吊架安装
1、支架与吊架所用钢材应平直,无显著扭曲。下料后长短偏差应在3mm范围内,切口处应无卷边、毛刺;
2、钢支架与吊架应焊接牢固,无显著变形,焊接前厚度超过4mm的支架、铁件应打坡口,焊缝均匀平整,焊缝长度应符合要求,不得出现裂纹、咬边、气孔、凹陷、漏焊等缺陷;
3、支架与吊架应安装牢固,保证横平竖直,在有坡度的建筑物上安装支架与吊架应与建筑物的坡度、角度一致;
4、支架与吊架的规格一般不应小于扁钢30mm×3mm;角钢25mm×25mm×3mm;
5、严禁用电气焊切割钢结构或轻钢龙骨任何部位;
6、万能吊具应采用定型产品,并应有各自独立的吊装卡具或支撑系统。
7、固定支点间距一般不应大于1.5~2m。在进出接线盒、箱、柜、转角、转弯和变形缝两端及丁字接头的三端500mm以内应设固定支持点。
8、严禁用木砖固定支架与吊架。
五、桥架安装
1、电缆桥架水平敷设时,支撑跨距一般为1.5~3m,电缆桥架垂直敷设时固定点间距不宜大于2m。桥架弯通弯曲半径不大于300mm时,应在距弯曲段与直线段结合处300~600mm的直线段侧设置一个支、吊架。当弯曲半径大于300mm时,还应在弯通中部增设一个支、吊架。支、吊架和桥架安装必须考虑电缆敷设弯曲半径满足规范最小弯曲半径。见下表。
电缆最小允许弯曲半径
2、门型角钢支架的安装:梯型桥架沿墙垂直敷设,可使用门型角钢支架,支架的固定应尽可能配合土建施工预埋。如图12.3.1.5(2-1),也可在土建施工中预埋开角螺栓,用开角螺栓固定支架如下图12.3.1.5(2-2),也可以采用膨胀螺栓固定。


图12.3.1.5.(2-1) 角钢支架预埋安装

图12.3.1.5.(2-2) 钢支架预埋地脚螺栓安装
3、梯型角钢支架的安装:桥架沿墙、柱水平安装时,托壁需安装在异型钢立柱上,而立柱要安装在梯型角钢支架上,使柱和墙上的桥架固定支架(或托臂)在同一条直线上。制作见图和表12.3.1.5(3)底架与门型架焊接时,焊角高度5mm。
表 12.3.1.5(3)
梯型角钢支架制作尺寸表(mm)

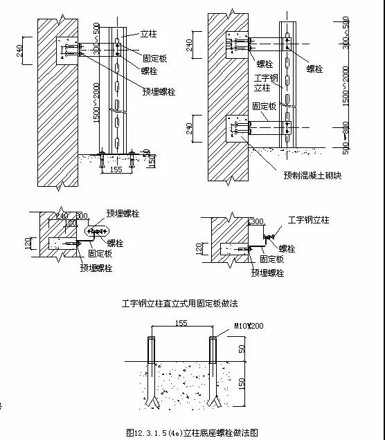
4、电缆桥架立柱侧壁式安装:立柱是直接支承托臂的部件,分工字钢槽钢、角钢、异型钢立柱;立柱可以在墙上、柱上安装、也可悬吊在梁板上安装。做法在混凝土可预埋铁件;砌体可砌筑预制砌块;也可以采用膨胀螺栓但必须在混凝土强度C20或砖强度在MU10以上的砖砌体上,作法可参照12.3.1.5(4a、b、c、d、e、f)。



图12.3.1.5(4c)异型钢立柱在墙上侧壁安装作法之一



5、电缆桥架应敷设在易燃易爆气体管和热力管道的下方,当设计无要求时,与管道的最小净距,符合12.3.1.5(5)的规定。
表示12.3.1.5 (5)与管道的最小净距

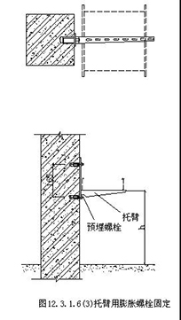
六、托臂安装:
托臂是直接支承托盘、梯架单独固定的刚性部件,托臂有螺栓固定可预埋螺栓,也可采用膨胀螺栓,也可卡接,如图12.3.1.6(1)、(2)、(3)、(4)、(5)。




三、电缆桥架安装注意事项
一、施工要求
1、直线段钢制电缆桥架长度超过30m,铝合金或玻璃钢制电缆桥架长度超过15m应设有伸缩节,跨越伸缩缝处设置补偿装置,可用带伸缩节的桥架。
2、桥架与支架间螺栓、桥架连接板螺栓紧固无遗漏,螺母位于桥架外侧,当铝合金桥架与钢支架固定时,有相互间绝缘防电化措施腐蚀措施,一般可垫石棉垫。
3、敷设在竖井内和穿越不同防火区的桥架,应按设计要求位置,有防火隔离措施,电缆桥架在电气竖井内敷设可采用角钢固定,见图12.3.1.8。
4、电缆桥架在穿过防火墙及防火楼板时,应采取防火隔离措施,防止火灾沿线路延燃;防火隔离墙、板,应配合土建施工预留洞口,在洞口处预埋好护边角钢,施工时根据电缆敷设的层数和根数用L50×50×5角钢作固定框,同时将固定柜焊在护边角钢上;也可以先作好框在土建施工中砌体或浇灌混凝土时安装在墙、板中。
二、桥架接地
桥架的接地,当设计允许利用桥架系统构成接地干线回路时,应符合下列要求:
金属电缆桥架及其支架引入或引出的金属电缆导管必须接地(PE)或接零(PEN)可靠,且必须符合下列规范:
1、金属电缆桥架及其支架全长,与接地(PE)或接零(PEN)干线相连接不小于2处,使整个桥架为一个电气通路。
2、非镀锌电缆桥架间连接的两端跨接铜芯接地线,接地线最小允许截面积不小于4mm2。
3、镀锌电缆桥架间连接板的两端可不跨接接地线,但连接板两端不少于2个有防松螺帽或防松垫圈的连接固定螺栓。
四、关于桥架的一些计算
桥架的放线容量,我们在布线中用的最多,平时我们是根据所有线缆总面积来确定桥架的大小,计算的方法前面弱电行业网曾介绍过,有不少朋友反映计算太慢,那么这里面我们分享一个桥架自动计算表格,填入线缆的根据,即可确定桥架的型号。

沪公网安备 31011202001934号